

频年来,卧室套房户型以“高明方便”为卖点成为楼市骄子。但当作入住三年的过来东谈主,我却毅然拆除了主卫改作衣帽间。
这个看似浪掷的决定背后,是的确生存场景中的五大痛点,奉劝宇宙一定不要盲目跟风,底下就跟宇宙分析分析,聊聊我为啥后悔了。
.01
卧室带卫生间的过错
1、难闻有异味
买房的技巧,思着卧室带卫生间方便,入住半年肠子悔青了,卧室卫生间是暗卫,莫得窗户,透气性差,上完茅厕,滋味泄气很快,即便开排气扇也不成将滋味实时破除,臭味很快就会飘到房间里,特地影响居住花样。
没目标唯有大号去其他卫生间,可是地漏,台盆的滋味如故有,没目标绝对阻绝滋味串上来的,总之有卫生间的卧室空气总嗅觉不好。
2、噪讯息题
有起夜民俗的或者寝息浅的一又友可能会有体会,当另一半起床上茅厕,如厕声,冲茅厕的声息确凿会影响寝息质料,懂得皆懂吧?

3、潮湿问题
卫生间留恋潮湿确凿很重,加上晦暗天潮气,墙壁瓷砖上皆是水珠,确凿有点可怕,挨着卫生间墙面的衣柜皆受潮,穿着皆有霉味......
4、卫生间对着床
躺在床上,不关门的话,能看到卫生间,说真话心里如故会膈应,这皆是当初没思到的问题。

.02
主卧带卫生间的问题怎样化解?
如若一经买了卧室带卫生间,况且决定在卧室留一个卫生间的话,濒临上述问题,在筹办和前期施工方面细心以下几点,便可有的放矢。
化解卫生间门对床的窘态
①改动门或者床的标的
肯定和我相同,卫生间异味是最受不了的一个问题,止境是开着卫生间门时,潮湿异味直扑而来,影响寝息质料,别说睡觉了,皆不思待卧室。
为了改善这一问题,最粗拙灵验的风景之一是改动卧室床的朝向或者调整卫生间门的标的:
• 磋商门的朝向应在装修前商量玉成,幸免后期施工中出现水电工程问题。
• 在改动门的朝向时,务必要商量建筑结构,确保要改动的墙体是否为轻体墙,以免影响全体结构沉稳性。

②离隔床和卫生间
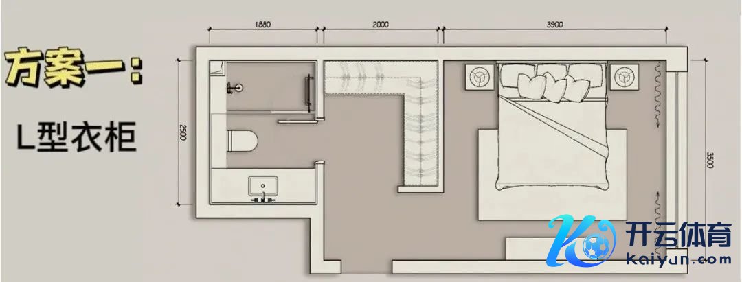
决策一:L型衣柜
一种最为常用的惩办决策是期骗阻隔柜,通过合理摆放阻隔柜,不仅不错灵验终止卫生间的异味,还能提供非常的储物空间,同期增添好意思感和实用性。


决策二:步入式衣帽间
衣帽间储物力超等强,这么的筹办不详灵验惩办床与卫生间之间获胜对视的情况,衣帽间不错用门或者门类遮拦,缓解卫生间气息的影响。


决策三:衣柜+阻隔
在卫生间与床之间加全部玻璃阻隔或者半墙遮拦,柜体不错与墙体纠合,隔而不停,收纳遮拦两不误,不影响采光不会把空间显小。


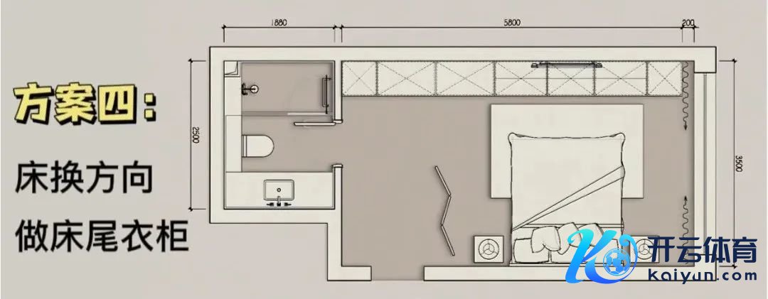
决策四:屏风阻隔
将床调个标的,将衣柜放床位,床与卫生间加全部屏风阻隔,视觉更显欢然,房间更显大更通透,住内部心态也会嗅觉好一些。


卫生间臭味怎样灵验处理?
卫生间的臭味开头有三个:地漏、洗漱台的下水口、马桶反味。知谈开头便可从根源惩办臭味为题。
1、地漏异味处理
①暂时堵塞:在不使用地漏时,可选择暂时堵塞的行动,举例,期骗密封袋装水或地漏盖,摈弃在地漏上,以减少气息逸出,这种风景合乎莫得存水弯的旧式房屋。
②更换防臭地漏:市面上有售卖有利筹办的防臭地漏,这些地漏能灵验阻隔下水谈的异味,购买老本也不高,更换浮浅,是一种长期惩办异味问题的好风景。

③依期加水:关于安设了存水弯的管谈系统,需要依期往地漏中倒水,以保捏存水弯中有豪阔的水抵牾气息,夏日由于水分挥发速率加速,这一操作特地紧迫。

2、洗手台下水口异味处理
①寻找气息源泉:仔细闻寻,找到异味最热烈的处所,广漠情况下是洗手台的下水口。
②密封漏洞:期骗玻璃胶或粘土等材料,将下水口周围的漏洞绝对密封,关于空调出水管或其他可能产生异味的管谈漏洞,也不错使用调换的风景进行处理。

3、马桶后异味处理
①发现遮掩小孔:使用手机录像功能探查马桶后不易察觉的小孔,这些孔洞可能是异味的开头。
②填塞孔洞:用超轻粘土或其他合乎的填充材料,将这些小孔绝对堵塞。选拔豪阔大的填充物,防备其掉入孔内。

怎样惩办主卧卫生间杂音潮湿?
1、嗜好管谈隔音
好多当代家庭,尤其是精装修房屋,卫生间装修时会管谈隔音处理,导致夜间冲水声息大干涉寝息,是以要确保水管周围包裹隔音棉,保证家东谈主的寝息质料。
2、防水施工细节
卫生间清洁后,运转刷第一遍防水材料,待干燥后,再进行第二遍涂刷,确保下层防水绝对,随后进行至少24小时的闭水测试,检查是否有漏水情况,确保防水层的完好意思性。

3、排水与结构保护
凭证管谈走势合理砌砖,选择田字格样子固定水管,幸免后期使用中的挪动,填充物应选拔陶粒而非建筑垃圾,以免破损防水层并繁殖细菌,接着,均匀铺设钢筋,为大地增多沉稳性,隆重长期使用后下千里。
4、表层防水与细节处理
表层防水时,墙面高度不低于1.8米,分裂使用刚性和柔性防水材料处理大地和墙面,止境是门槛和邻近区域,需要重心加强防水,边角处应使用堵漏材料,确保无漏洞。

5、透风筹办
①当然透风优先如若条目允许,筹办时应试虑窗户的位置和大小,期骗当然风结束空气素养。
②安设高效排电扇关于莫得窗户或当然透风不及的卫生间,安设一台高效的排电扇是必不可少的,排电扇应安设在卫生间的最高位置,以匡助排出潮湿和异味。
③依期清洁透风配置为了确保透风配置的遵循欧洲杯体育,依期清洁排电扇和透风口口舌常必要的,堵塞的过滤网和透风管谈会严重影响透风后果。
